Te koop Residential Plot Costa Del Sol Hacienda Las Chapas € 3.600.000,-
In de exclusieve wijk Las Chapas doet zich een unieke kans voor: een perceel grond van ruim 4.500 m² met een afgerond project.
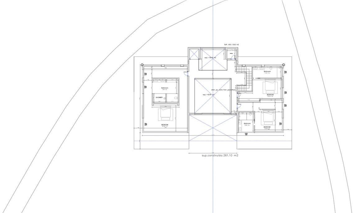
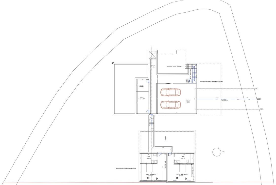
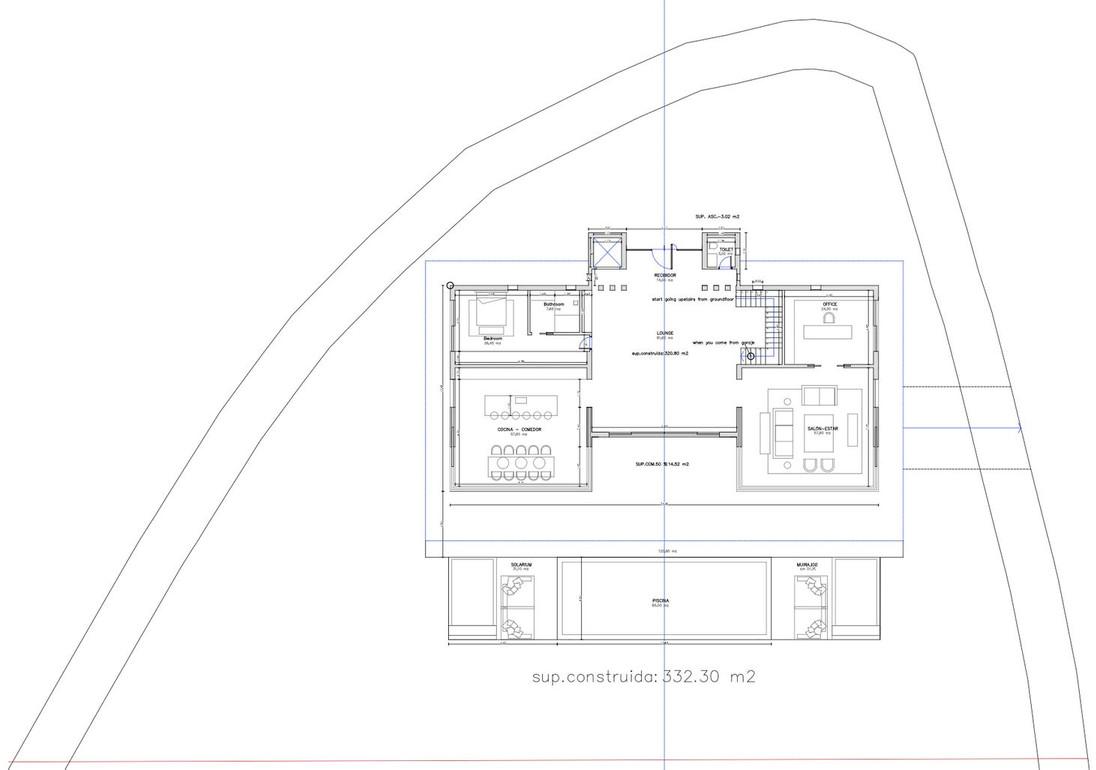
Het project beoogt een woning van circa 800 m² verdeeld over drie verdiepingen, inclusief een elegante kelder met een ruime garage. Elke ruimte is ontworpen met hoogwaardige materialen en een eigentijdse architectuurstijl die licht, design en natuur naadloos combineert.
De aanvraag voor de bouwvergunning is reeds ingediend en zal naar verwachting binnen enkele maanden worden goedgekeurd.
U kunt de villa off-plan kopen, zodat u de afwerking naar wens kunt aanpassen (prijs op aanvraag). U kunt er ook voor kiezen om alleen het land te kopen en het project al af te ronden. Dit is een ideale optie voor wie wil investeren of zijn eigen concept wil ontwikkelen binnen een goedgekeurd architectonisch kader.
Een exclusief pand op een van de meest gewilde locaties van Marbella.
meer info