Te koop Herenhuis Costa Del Sol Estepona € 499.950,-
Beautifully Renovated Townhouse Near Laguna Village | Estepona
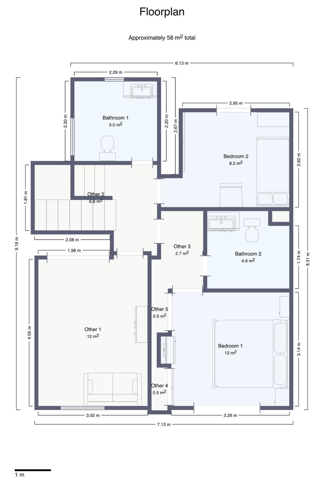
Discover this superb three bedroom townhouse set just moments from Laguna Village and the coast. Fully refurbished to an exceptional standard, the home spans one hundred and thirty three square metres across three beautifully designed levels, offering a perfect balance of style, comfort, and modern convenience.
The ground floor features a brand new kitchen with premium appliances, sleek cabinetry, and stone surfaces that open naturally into a bright, spacious living area. Large new windows fill the interior with natural light and create a fresh, inviting atmosphere. Each of the three bedrooms is fitted with elegant built in wardrobes, while the redesigned bathrooms showcase contemporary fixtures, high end finishes, and tasteful lighting. The home is fully air conditioned for year round comfort. A standout feature is the photovoltaic solar installation that supports lower energy costs and reflects a thoughtful, sustainable approach to modern living. Outdoor areas are equally impressive with a private garden ideal for quiet mornings and relaxed evenings, along with a generous roof terrace that captures open views and coastal breezes. The large communal swimming pool offers a resort style experience within a peaceful residential setting.
The property includes a private carport that provides secure and convenient parking, a valuable asset so close to the beach and nearby amenities. The location is outstanding with cafés, restaurants, and leisure options just a short walk away, allowing you to enjoy Estepona’s laid back beachside lifestyle with ease.
This turnkey townhouse stands out for its quality, modern design, and exceptional position near the coast. With premium finishes, sustainable features, generous outdoor spaces, and access to a large communal pool, it represents an excellent opportunity in one of the Costa del Sol’s most desirable areas. A private viewing is highly recommended.
meer info