Te koop Vrijstaande Villa Costa Del Sol Nagüeles € 8.950.000,-
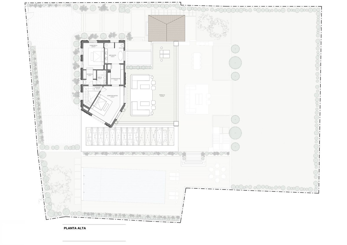
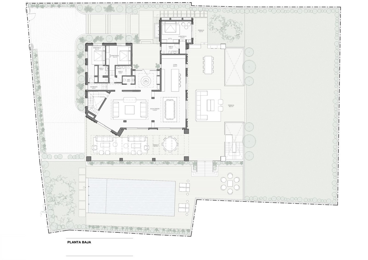
This villa is a refined, modern residence located in Rocío de Nagüeles, one of Marbella’s most prestigious and private residential zones. Just minutes from the Golden Mile, the property sits on a 2,370 m² flat plot and offers 712 m² of built space thoughtfully laid out across spacious, light-filled interiors. The architecture emphasises clean lines, open volumes, and strong indoor-outdoor connections, with large sliding glass doors leading to landscaped gardens, a private swimming pool, and a variety of outdoor lounging and dining spaces. Natural stone finishes, warm wood textures, and minimalist lighting create a timeless, understated elegance throughout.
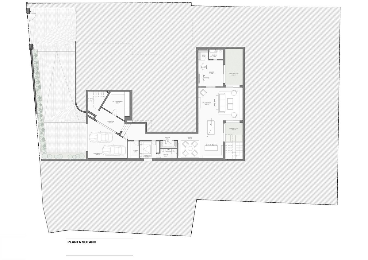
The villa is designed for both everyday living and entertaining, boasting the incredible collaborative efforts of the stellar teams from Sandon, Ames Arquitectos & GC studio. The villa offers an open-plan kitchen and living area, multiple lounge zones, and a seamless flow to the exterior terraces. A dedicated wellness area includes a gym space and sauna, while a separate cinema room and games area offer more relaxed, private entertainment. Outdoors, a custom firepit lounge, rooftop chill-out space, and full-size tennis court complete the lifestyle offering. Despite its calm, residential setting, it is just a short drive to Marbella Club, Puente Romano, and the beaches of the Golden Mile, offering the best of privacy and proximity.
Detached Villa, Nagüeles, Costa del Sol.
6 Bedrooms, 8 Bathrooms, Built 712 m², Terrace 628 m², Garden/Plot 2370 m².
Setting : Close To Golf, Close To Shops, Close To Town, Close To Schools, Close To Forest.
Orientation : East, South East, South, South West, West.
Condition : Excellent, New Construction.
Pool : Private, Heated.
Climate Control : Air Conditioning, Fireplace, U/F Heating, U/F/H Bathrooms.
Views : Sea, Mountain.
Features : Covered Terrace, Lift, Fitted Wardrobes, Private Terrace, Solarium, Gym, Sauna, Games Room, Tennis Court, Utility Room, Ensuite Bathroom, Marble Flooring, Jacuzzi, Bar, Barbeque, Basement.
Furniture : Fully Furnished.
Kitchen : Fully Fitted.
Garden : Private.
Parking : Underground, Garage, Covered, Private.
Category : Luxury.
meer info