Te koop Herenhuis Costa Del Sol San Roque Club € 799.000,-
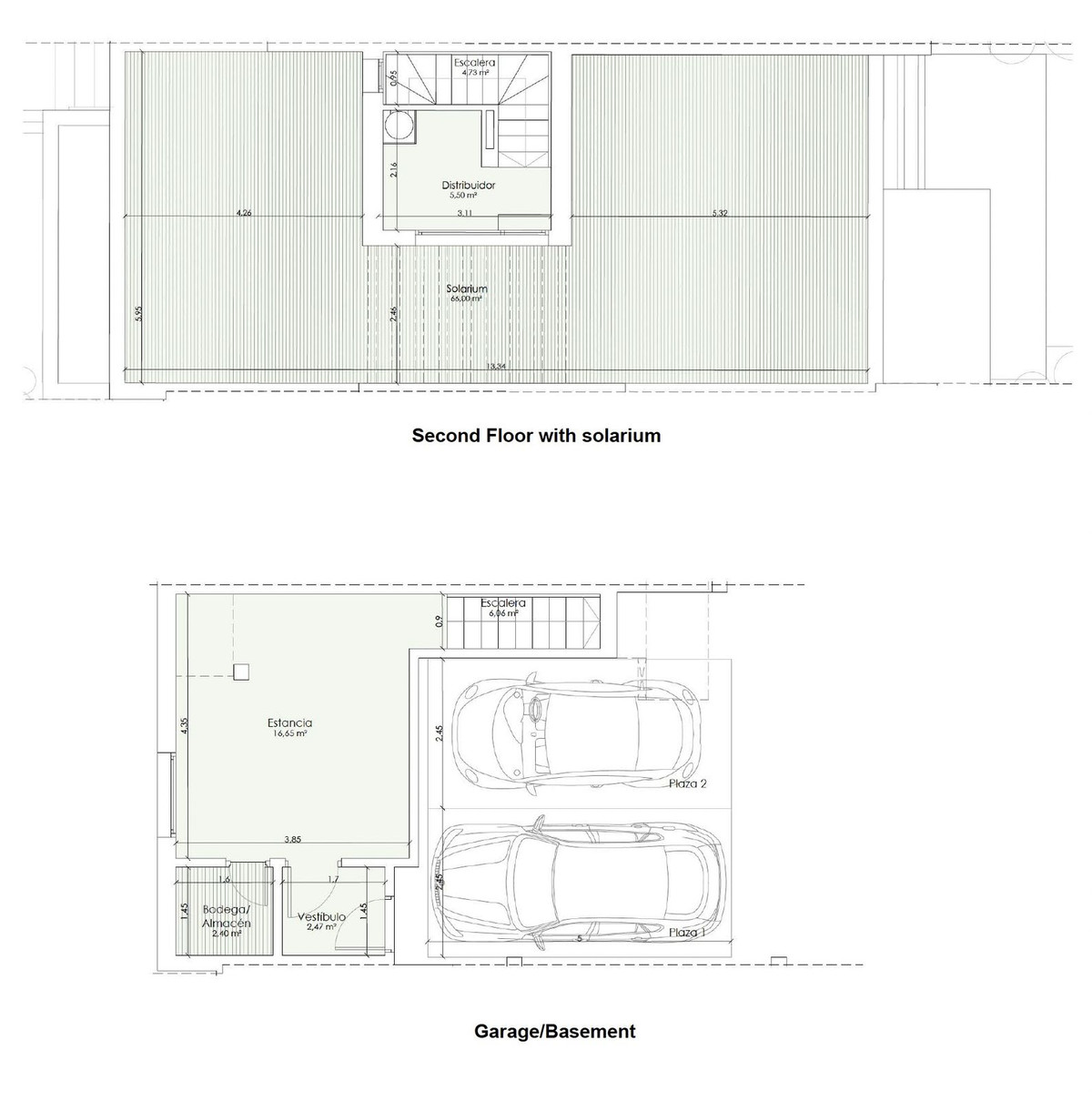
This exceptional townhouse, completed in 2022, offers contemporary living with stunning views of the prestigious San Roque Golf Club. With 180 m² of usable space, whether you're looking for a dream vacation home or a permanent residence, this property has it all. Featuring 3 spacious bedrooms, a stylish living and dining area, an open-concept kitchen, 2 bathrooms, a guest toilet, as well as storage space and 2 garage spaces, this home combines comfort and practicality.
The ground floor boasts a bright and airy living room that opens up to a large west-facing terrace and private garden, perfect for outdoor gatherings, with stunning views of the golf course. The sleek, modern kitchen is fully equipped with high-end appliances. Also on this level, you’ll find a convenient guest WC and a useful storage room. Upstairs, the master bedroom comes with an en-suite bathroom and a private glazed balcony overlooking the golf course. Two additional well-sized bedrooms share a bathroom with a bathtub, and have access to a balcony with views of the community pool.
The spacious rooftop terrace, offers panoramic views of the sparkling sea, the well-maintained golf course, and the community area. Large, modern windows with aluminum frames flood the home with natural light, while an energy-efficient heat pump system ensures comfort throughout the year.
Situated in a secure, gated community with 24-hour security, this property offers both luxury and peace of mind. The complex features a gym, sauna, and a communal pool, all surrounded by beautifully landscaped gardens and cork oak trees. Located in a peaceful setting, it’s just a short drive from Alcaidesa Beach and Sotogrande Marina.
This is a rare opportunity to live in one of the most sought-after locations in Spain. Don’t miss your chance to own this exceptional property!
meer info