Te koop Finca - Cortijo Costa Del Sol Alora € 649.000,-
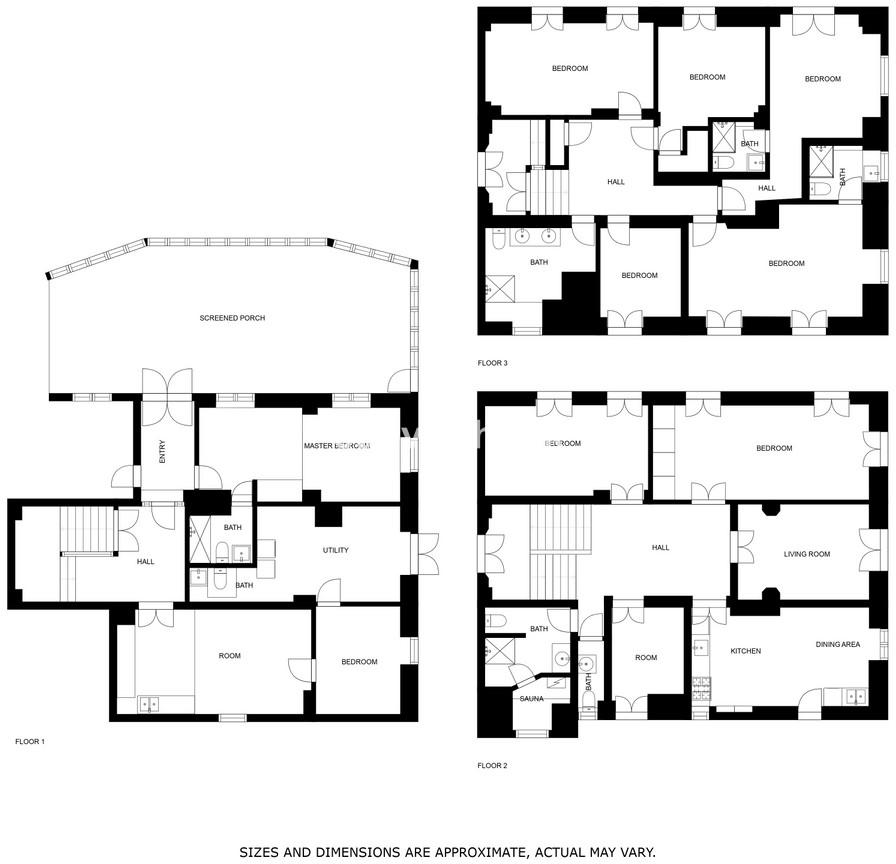
This is a magnificent and unique Bohemian villa. The 100 years old historic villa is located on a large plot of more than 3000 square meters with the largest pool in the nearby area. The house has had several different use cases over the years thanks to its 10 rooms.
The villa has been renovated for today’s purposes with recently renovated bathrooms. The bedrooms offer stunning views of the Guadalhorce valley and the arabian castle of Alora. The personal décor and different color scheme that are a perfect fit with the original tiling and wooden doors, as well as other unique details. Each room is surprising with its personality and the villa with is surrounding area is suitable for many uses as a Boutique hotel, yoga retreat, meeting place, restaurant and more. The sky’s the limit
The garden seats 200 guests with its own barbeque and bar area. In addition to this there is a large, glazed farmhouse which works perfectly as a studio, gallery, hobby room etc. The farmhouse has its own separated apartment which could be used by the owner, staff or as a rental. There is one additional detached house with its own kitchen, bathroom, and loft. This amazing villa is a must-see place to experience!
The bohemian villa is located 1 km from central Alora with Ronda and Marbella short drive away as well. You can walk to the train station in 5 minutes and take a short train ride of 8 minutes to El Chorro. Outstanding outdoor and sports facilities nearby, and the famous hiking trail Caminito del Rey is approximately 15 km away.
This villa makes it possible to enjoy the countryside and having the Mediterranean Sea 45 minutes away. It is for sale as a rent to buy purchase completion January 2027.
meer info