Te koop Vrijstaande Villa Costa Del Sol La Capellania € 2.695.000,-
This exceptional house is a dream come true, where modern design meets natural beauty. With its bright and open atmosphere, combined with sophisticated dark details, the property offers a perfect balance of elegance and comfort. From the large windows, you can enjoy the spectacular sea views stretching out to the horizon, creating a calm and peaceful atmosphere throughout the villa.
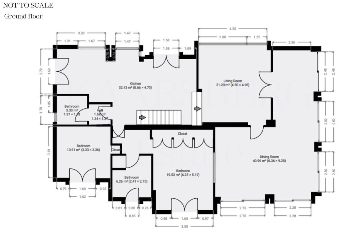
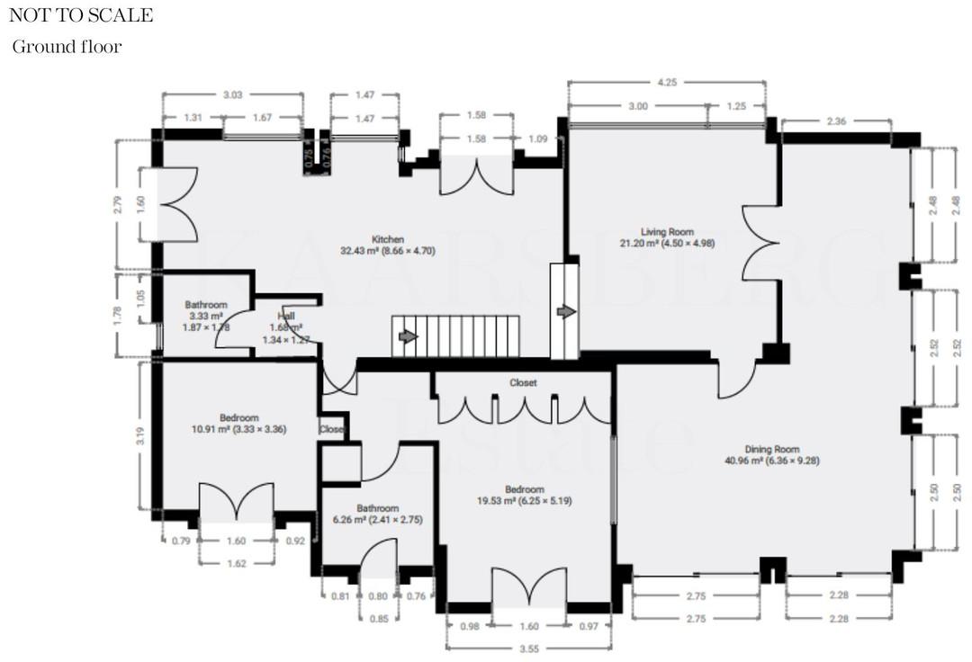
The house is distributed over three floors, offering plenty of space and flexibility.
The ground floor features an open kitchen and living area, where light and space take center stage. Here you’ll also find two bedrooms, each with their own en-suite bathroom – ideal for family or guests. This floor has direct access to a covered terrace with glass curtains, which can be opened to let the fresh breeze flow in. From here, there is further access to a large private terrace with a beautiful pool, surrounded by vegetation, making the ground floor perfect for outdoor living.
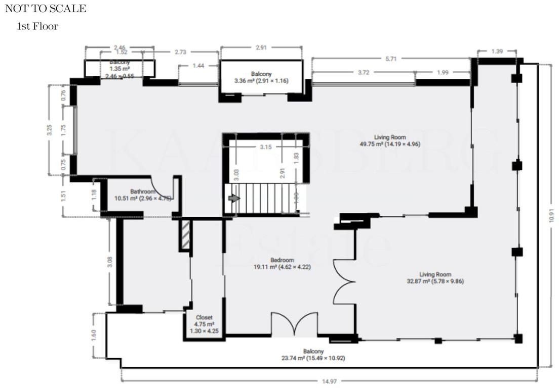
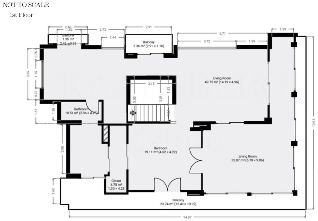
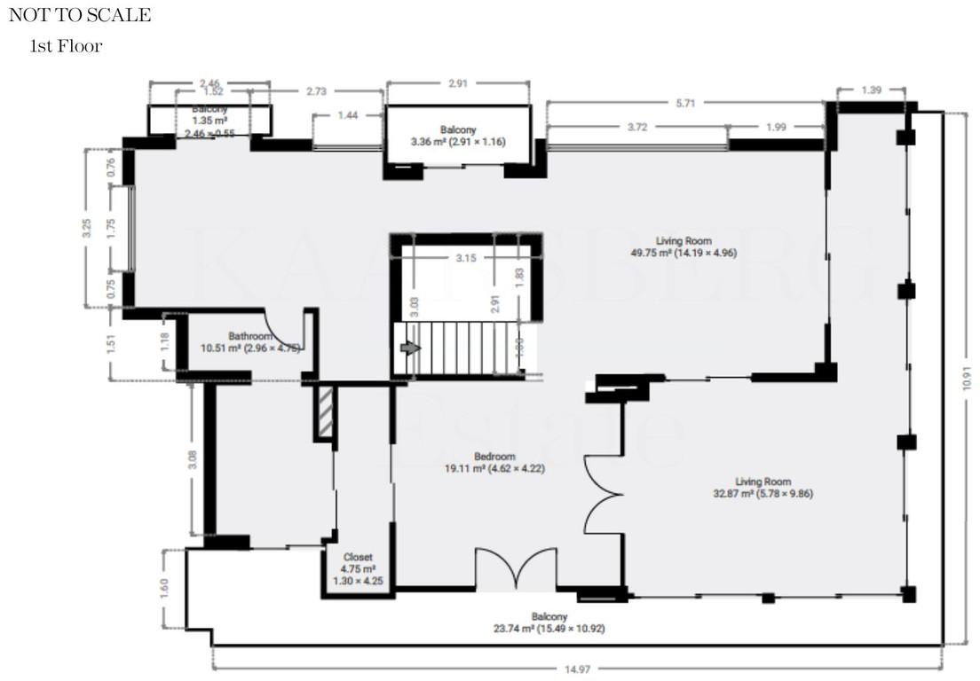
The first floor contains a spacious living room, a bedroom with a walk-in closet, and a luxurious en-suite bathroom. The walk in closet functions as a "hidden door" to the bathroom.
This floor also has direct access to a covered terrace with glass curtains, where you can enjoy both privacy and the incredible views of the sea and Fuengirola.
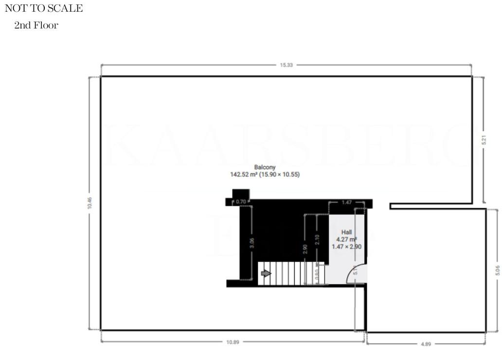
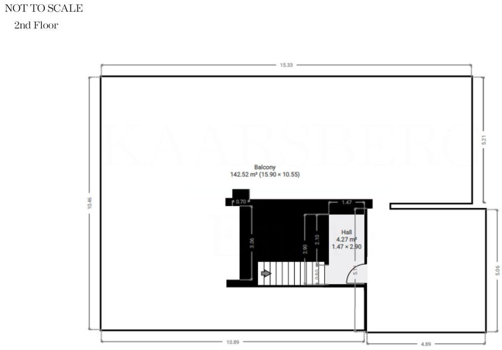
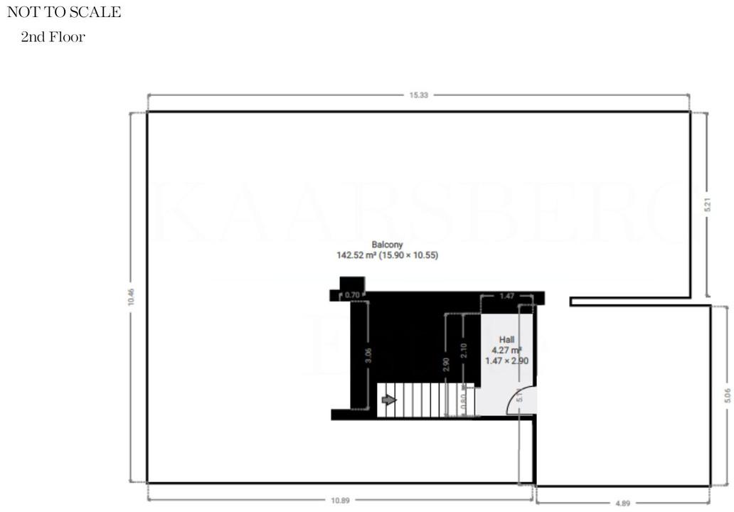
The top floor is an open rooftop terrace with panoramic views, offering the opportunity to enjoy the sun all day long and watch the most beautiful sunsets and sunrises. This is the perfect place to relax and experience a sense of freedom while overlooking the surrounding landscape.
The fourth and final bedroom is located in a secluded part of the house for added privacy and luxury.
The garage is spacious and can accommodate up to four vehicles. It also functions as a utility room where you'll find both washing machine and dryer. The garage is really something else! Bright and spacious, and will stay dry even under heavy rain.
Outside, you’ll find several exclusive features, including outdoor showers and outdoor kitchens – the perfect setup to enjoy long, warm summer evenings in great company.
The villa features underfloor heating throughout, ensuring a comfortable and cozy atmosphere all year round, regardless of the season. Additionally, the downstairs living area is enhanced by a stylish fireplace, offering a warm and inviting ambiance, perfect for relaxing during cooler evenings.
You'll be able to feel very safe in this villa, as the ground floor is secured with burglar-proof windows throughout as well as strong aluminum burglary-proof blinds. The entire house can be safely secured by electric blinds.
The house is located in the attractive and peaceful area of La Capellania, offering both privacy and easy access to a wide range of facilities.
Within a short drive, approximately 10 minutes, you’ll find local restaurants, supermarkets, the beach, and sports facilities such as paddle tennis, tennis, fitness centers, and spa.
Here, you can enjoy the best of both peace and comfort, while still being close to everything that makes life easy and enjoyable.
meer info