Te koop Residential Plot Costa Del Sol Manilva € 249.950,-
Here is a plot in la Paloma....Easy access to the main road leading in one direction to Sotogrande and in the other direction to Marbella.
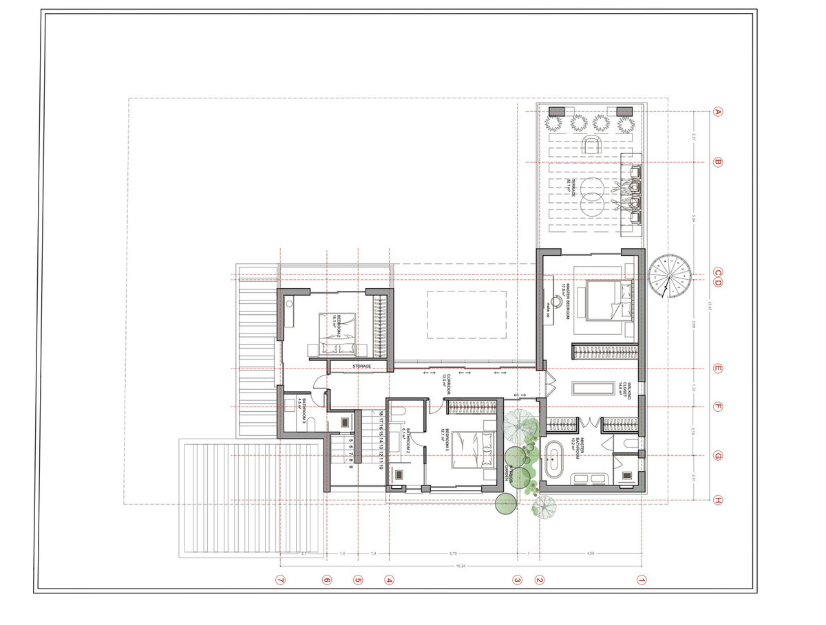
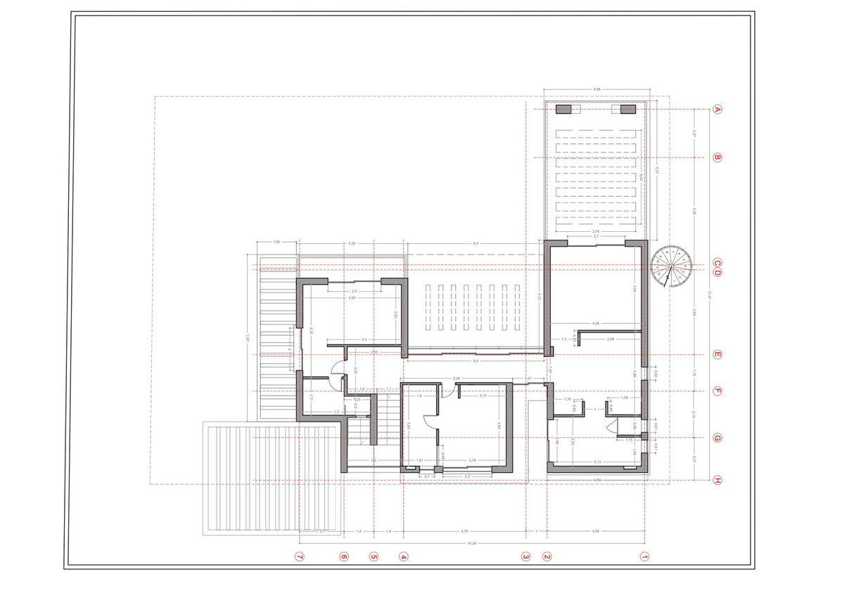
Building plot with project in license in the gorgeous seaside location known as la Paloma.
The license granted in November 2023
This lovely south-east facing plot has gorgeous sea vies, and is less than 500 meters from the beach.
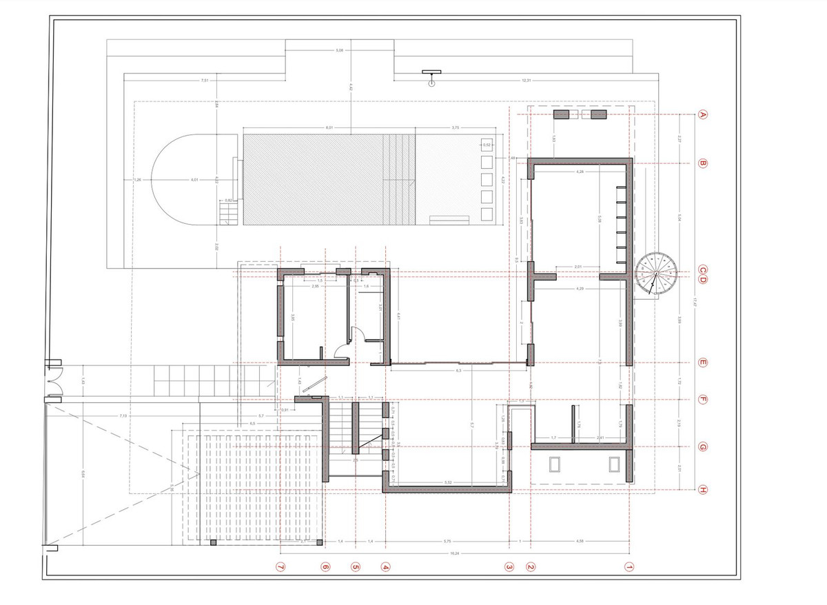
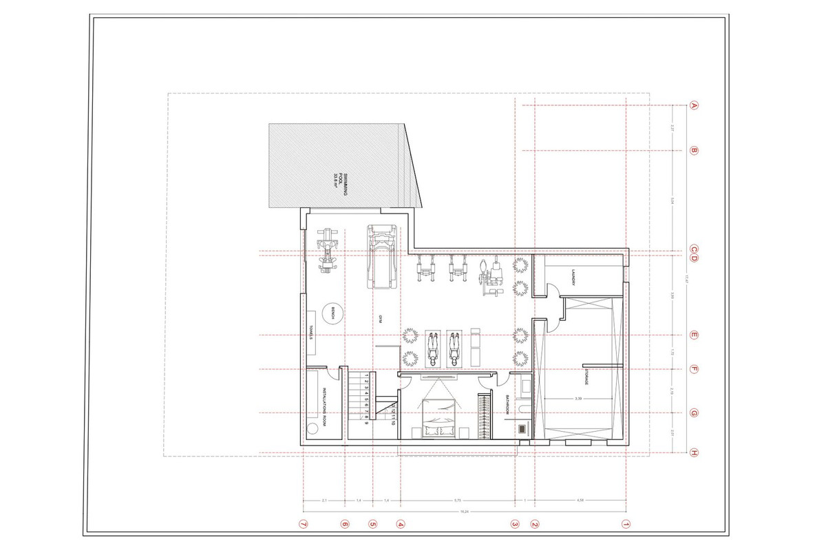
The buildability of the land is a generous 33%, and so as well as the 280 square meters that can be built above ground, there is also a huge basement, which, due to the incline of the land, can be built with substantial natural light.
The western Costa del Sol is becoming the location of choice for those discerning buyers who wish to move to the stunning southern coast of Spain but who are looking for a more authentic and relaxing experience. Just within the province of Malaga, but very close to the border with the province of Cadiz, this part of the Costa del Sol benefits from its closer proximity to the Atlantic Ocean, making the beaches that much more attractive and it's sea waters that much more fresh.
meer info